Ferdinand-Freiligrath-Str. 53
06502 Thale
Wohnungsgenossenschaft Thale e.G. bei InstagramWohnungsgenossenschaft Thale e.G. bei Facebook
Wohnungsgenossenschaft Thale e.G.

Singlewohnung

Mehrfamilienhaus in unmittelbarer Nähe zum Wald.

Lage

In der Nähe befinden sich: Einkaufsmöglichkeiten, Apotheke, Ärzte, KITA, Grundschule, Gymnasium, Sparkassenfiliale, Bushaltestelle (Stadtlinie).

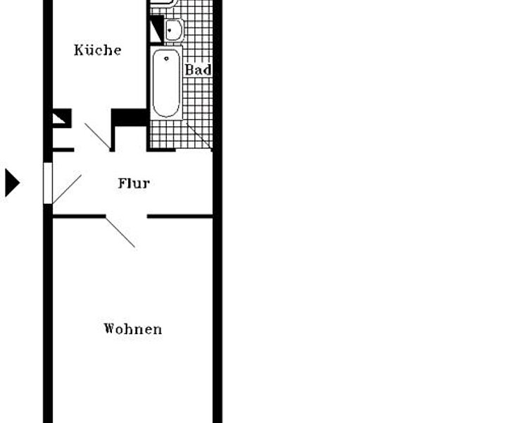
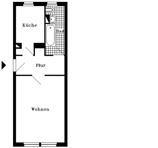
Ausstattung

- das Bad mit Wanne ist komplett gefliest;

- in der Küche ist auf Höhe der Nassstrecke ein Fliesenspiegel angebracht;

- alle Fußböden wurden bereits erneuert und ein PVC-Fußbodenbelag in Laminatoptik verlegt;

- die gesamte Wohnung ist tapeziert in Rauhfaser-weiß

Sonstiges

Die Treppenhausreinigung wird durch eine Fremdfirma durchgeführt.

Direkt vor dem Wohnhaus können zusätzlich PKW-Stellplätze angemietet werden.

Adresse:W.-Bredel-Ring 2, Thale
Objektnummer: 44.2.3
Etage: 1
Etagen: 4
Baujahr: 1965
Wohnfläche: 30.88m²
Zimmeranzahl: 1
 

Energie

Energieausweis: Energieverbrauchsausweis
Energieverbrauch: 116,00 kWh/(a m²)
Energieeffizienzklasse: D
Ausstellungsdatum: 2018-03-05
Gültig bis: 03-2028
Heizungsart: ETAGE
Primärer Energieträger: GAS
 
Verfügbar ab:01.02.2026
Kaltmiete:211 €
Warmmiete:285 €
Singlewohnung
Singlewohnung

Kontaktieren Sie uns

Unsere Immobilienexperten beraten Sie gerne

Ich bitte um:

Bitte geben Sie hier das Wort ein, das im Bild angezeigt wird. Dies dient der Spam-Abwehr.

CAPTCHA-Bild zum Spam-Schutz Wenn Sie das Wort nicht lesen können, bitte hier klicken.

Mit * gekennzeichnete Felder sind Pflichtfelder.