Ferdinand-Freiligrath-Str. 53
06502 Thale
Wohnungsgenossenschaft Thale e.G. bei InstagramWohnungsgenossenschaft Thale e.G. bei Facebook
Wohnungsgenossenschaft Thale e.G.

Familienwohnung

Die Wohnung befindet sich in einer Wohneigentumsanlage in unmittelbarer Nähe zum Wald.

Lage

Mehrfamilienhaus in unmittelbarer Nähe zum Wald. In der Nähe befinden sich: Einkaufsmöglichkeiten, Apotheke, Ärzte, KITA, Grundschule, Gymnasium, Sparkassenfiliale, Bushaltestelle (Stadtlinie).

Ausstattung

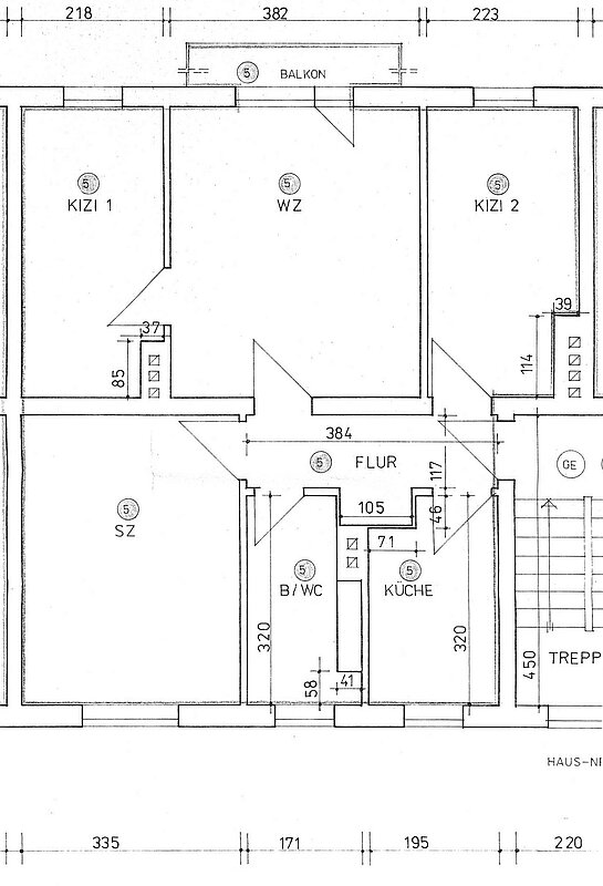
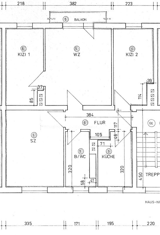
- die Wohnung verfügt über einen Süd-Balkon;

- das Bad mit Wanne ist komplett neu gefliest;

- in der Küche ist auf Höhe der Nassstrecke ein Fliesenspiegel angebracht;

- sämtliche Innentüren sowie die Wohnungseingangstür wurden bereits erneuert;

- im Flur der Wohnung ist ein großer Einbauschrank vorhanden;

- alle Fußböden wurden bereits erneuert und schwellenlos ein PVC-Fußbodenbelag in Laminatoptik verlegt;

- die gesamte Wohnung ist tapeziert in Rauhfaser-weiß

Sonstiges

Die Treppenhausreinigung wird durch eine Fremdfirma durchgeführt.

Adresse:B.-Brecht-Str. 44, Thale
Objektnummer: 39.1.5
Etage: 2
Etagen: 4
Baujahr: 1963
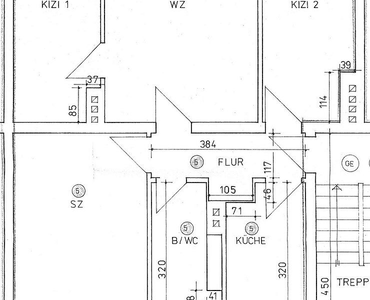
Wohnfläche: 69m²
Zimmeranzahl: 4
Balkon: ja, 1 Balkone
 

Energie

Energieausweis: Energieverbrauchsausweis
Energieverbrauch: 118,00 kWh/(a m²)
Ausstellungsdatum: 2018-07-11
Gültig bis: 02-2026
Heizungsart: ETAGE
Primärer Energieträger: GAS
 
Verfügbar ab:01.06.2026
Kaltmiete:476 €
Warmmiete:604 €
Familienwohnung
Familienwohnung

Kontaktieren Sie uns

Unsere Immobilienexperten beraten Sie gerne

Ich bitte um:

Bitte geben Sie hier das Wort ein, das im Bild angezeigt wird. Dies dient der Spam-Abwehr.

CAPTCHA-Bild zum Spam-Schutz Wenn Sie das Wort nicht lesen können, bitte hier klicken.

Mit * gekennzeichnete Felder sind Pflichtfelder.